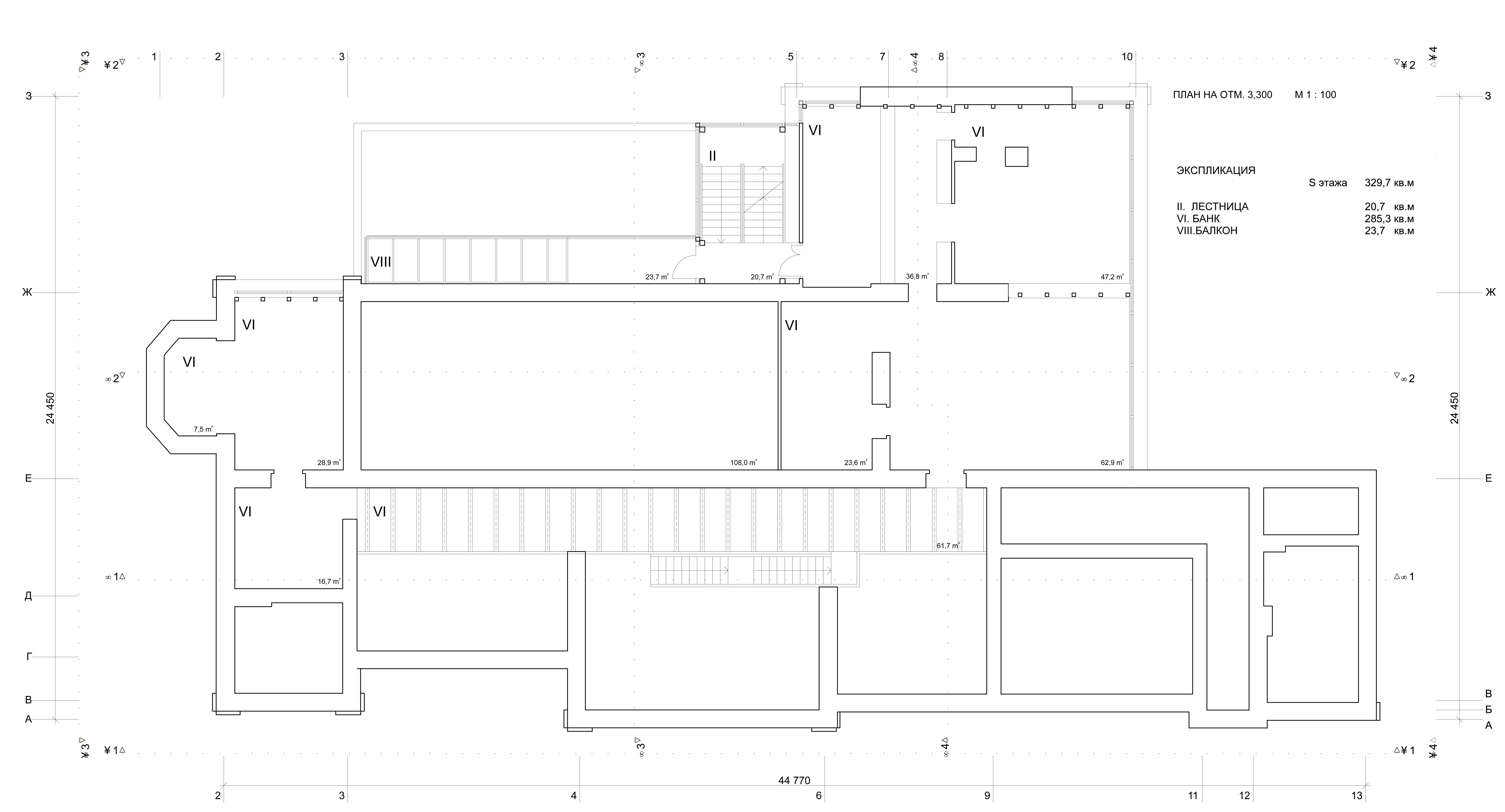
план 2
3608 просмотра

план 2

Добавлено к Реконструкция корпуса Лин...6 года назад