14129 просмотра

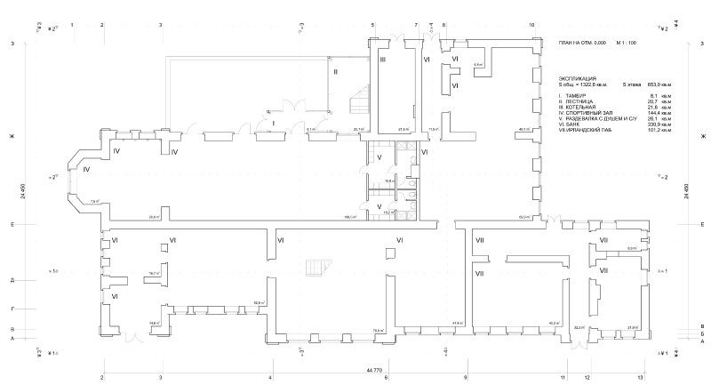
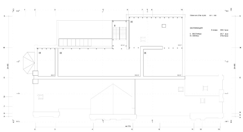
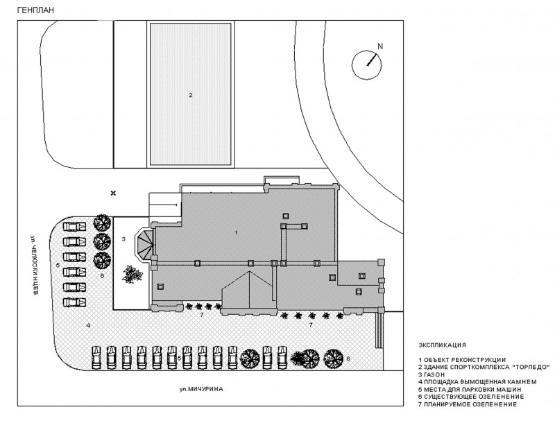
Реконструкция корпуса Лин...

Мичурина 90
11 изображения6 года назад