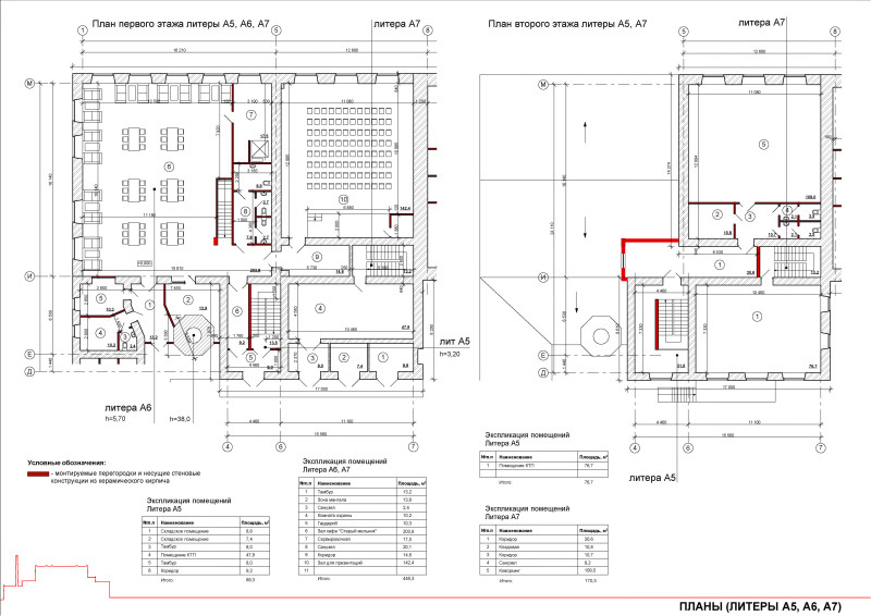
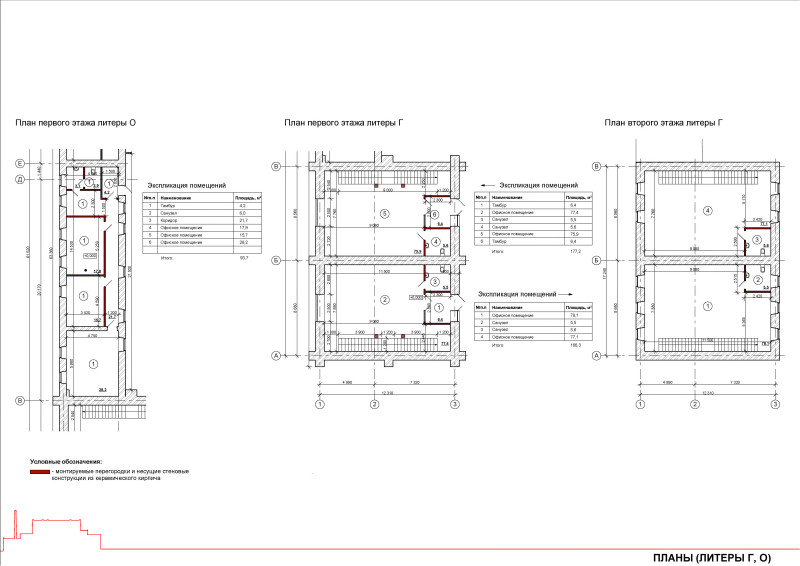
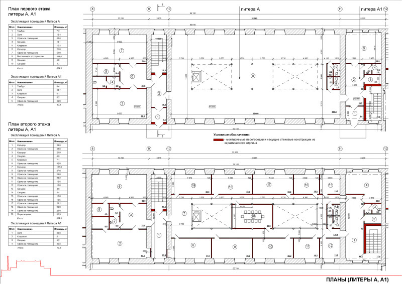
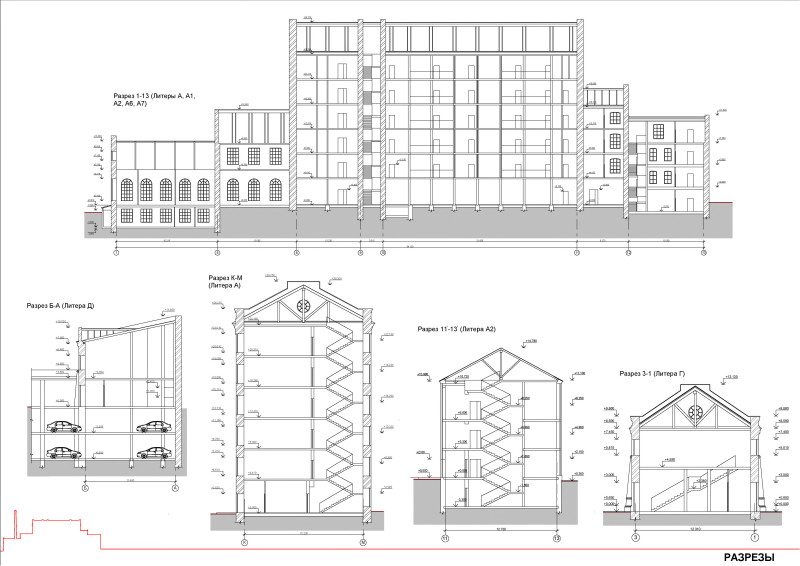
11116 просмотра

Мельница Соколовых

33 изображения4 года назад