46389 просмотра

Благоустройство ул.Красно...

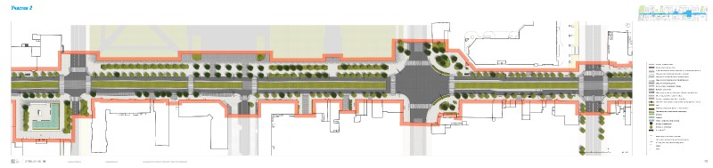
Эскизный проект благоустройства ул.Красноармейской. Разработан ООО "Творческая мастерская ТМ" по заказу КБ Стрелка
45 изображения7 года назад